35 Belvedere Crescent, Ottawa, ON K1M 2G4
Toggle Navigation
Images
Videos
Floor Plans
Map
35 Belvedere Crescent
Ottawa, ON K1M 2G4
Scroll to Content
Images
Slideshow
Photo Grid
Hide
Previous
Next
Show more
Videos
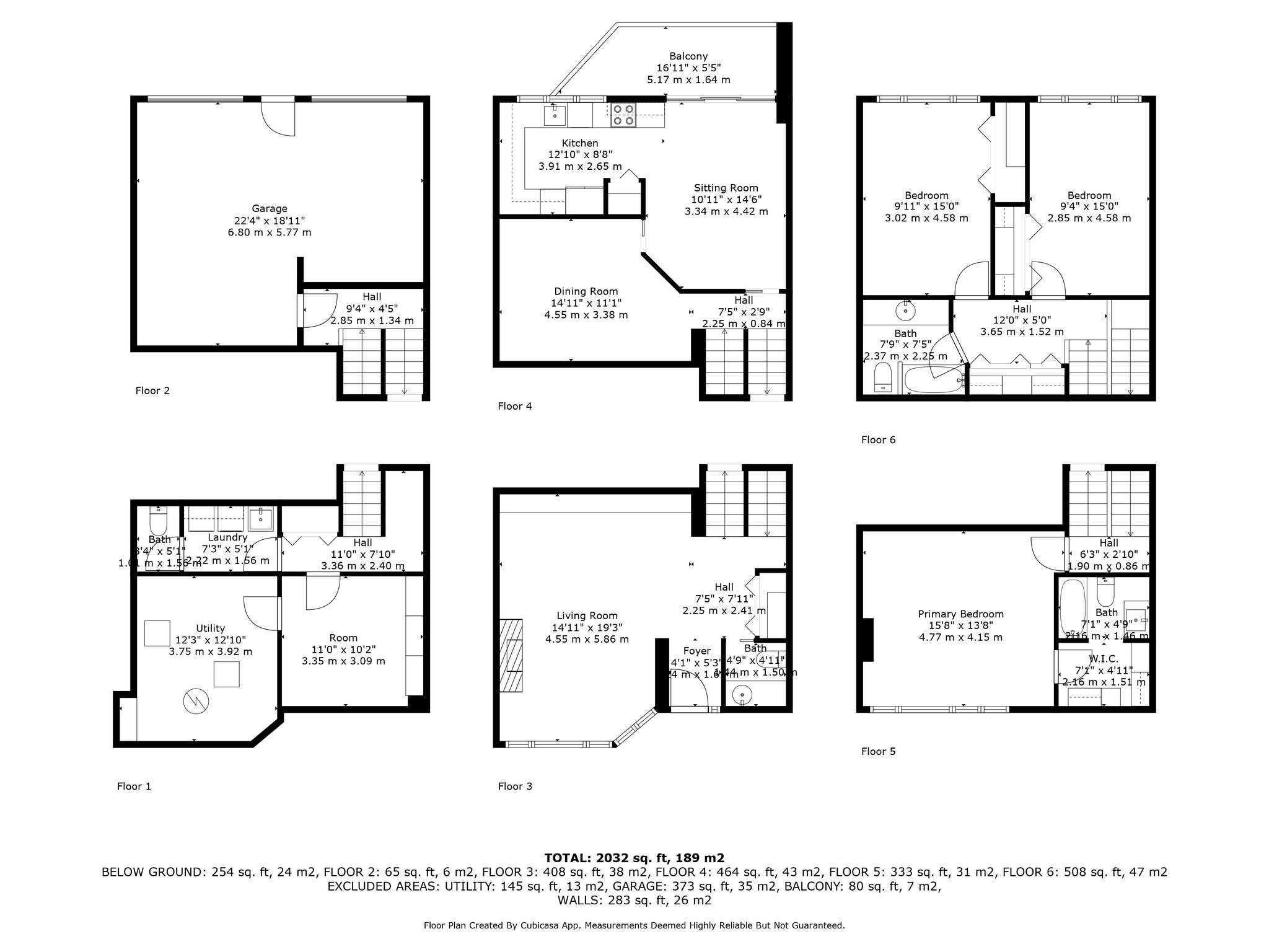
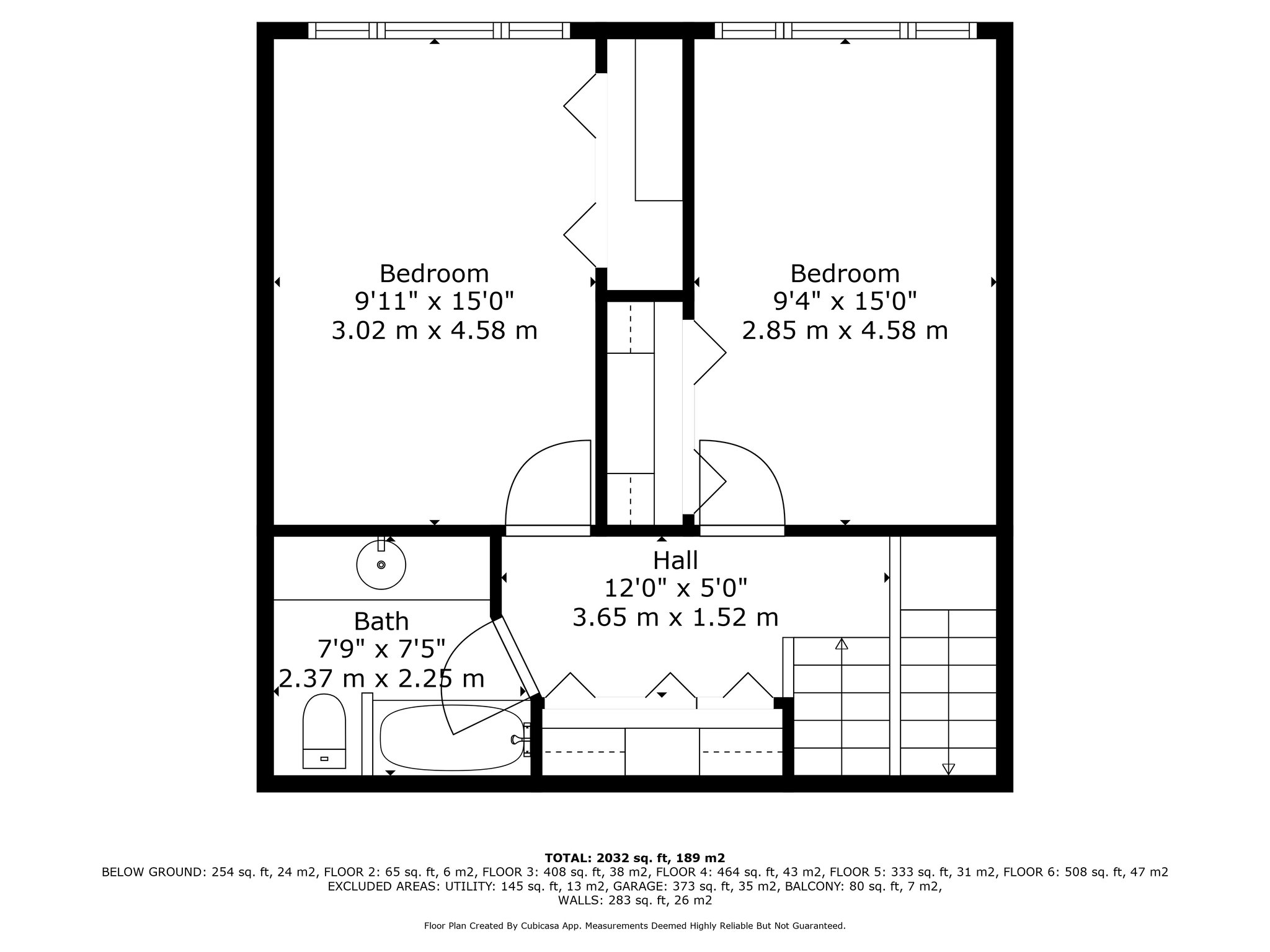
Floor Plans
Slideshow
Photo Grid
Hide
Previous
Next