1308 Summerville Ave, Ottawa, ON K1Z 8G8
Toggle Navigation
Images
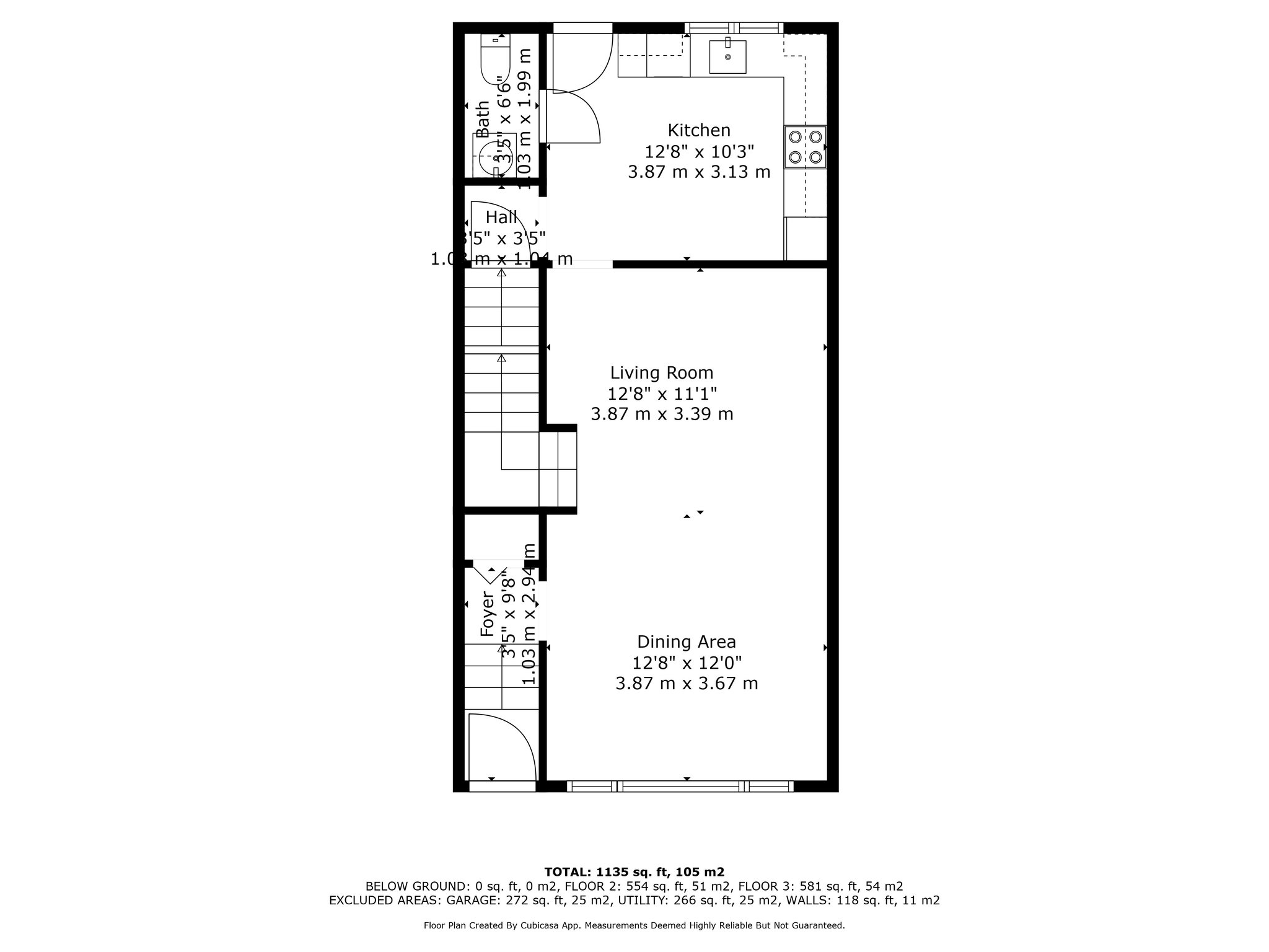
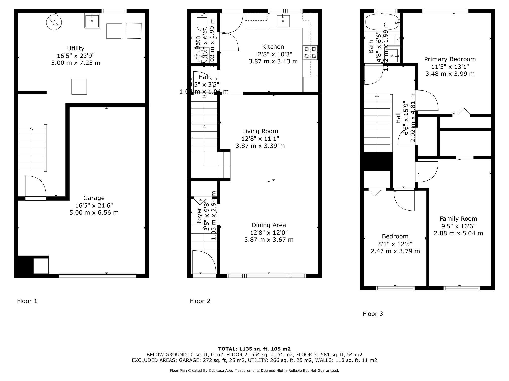
Floor Plans
Map
1308 Summerville Ave
Ottawa, ON K1Z 8G8
Scroll to Content
Images
Slideshow
Photo Grid
Hide
Previous
Next
Show more
Floor Plans
Slideshow
Photo Grid
Hide
Previous
Next